Dijual Rumah Bisa Komersil Dekat Garuda, Gunung Sahari Kemayoran, Gunung Sahari, Jakarta Pusat

123456
  • Lokasi: Gunung Sahari, Jakarta Pusat
  • Kota: Jakarta Pusat
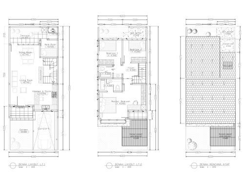
  • Luas Tanah: 60 m2
  • Luas Bangunan: 66 m2
  • Jumlah Lantai: 2
  • Kamar Tidur: 2
  • Kamar Mandi: 2
  • Sertifikat: SHM – Sertifikat Hak Milik
  • Informasi Tambahan:

    Ukuran
    Tanah 4 x 15
    Bangunan 4 x 8 x 2 lantai
    – Tersedia 3 unit dengan ukuran dan harga sama
    – Bisa dijadikan kantor juga. masuk dalam zonasi ruko
    – Pengerjaan di bulan juli 2019, dengan perkiraan pembangunan 1 tahun
    – Jalan 2 mobil Bisa KPR
    – Design dan lay out bisa disesuaikan dengan pesanan pembeli
    – 100m dari jalan Garuda Raya, Kemayoran
    – Akan dikenakan biaya tambahan bila ingin melakukan penambahan (lantai, bahan, design khusus, dll)
    – Bisa cicil tunai selama 12 bulan
    – Harga sudah termasuk BPHTB, notaris dan balik nama, bila transaksi non KPR
    – Diskon Rp. 150.000.000 untuk pembelian cash 90%
    Untuk informasi lebih lanjut dan survey, silahkan hubungi THOMAS RAY WHITE KEMAYORAN 0815.1179.2288

  • Harga Jual: Rp. 1.750.000.000
  • Hubungi: +62214268000 / +628161497337